Casa De Lellis:
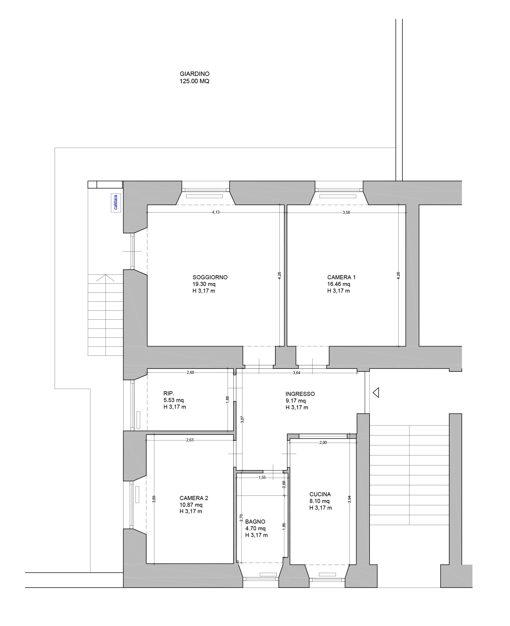
Casa De Lellis è un appartamento situato in un tranquillo quartiere residenziale di Roma, dove si respira ancora l’atmosfera dei villini dei primi del ’900. L’abitazione si affaccia sulle chiome degli alberi da frutto del suo giardino privato, ma la planimetria originaria presentava una distribuzione poco funzionale per le esigenze di una giovane famiglia con due bambini: il soggiorno risultava limitato e le camere da letto troppo contenute.
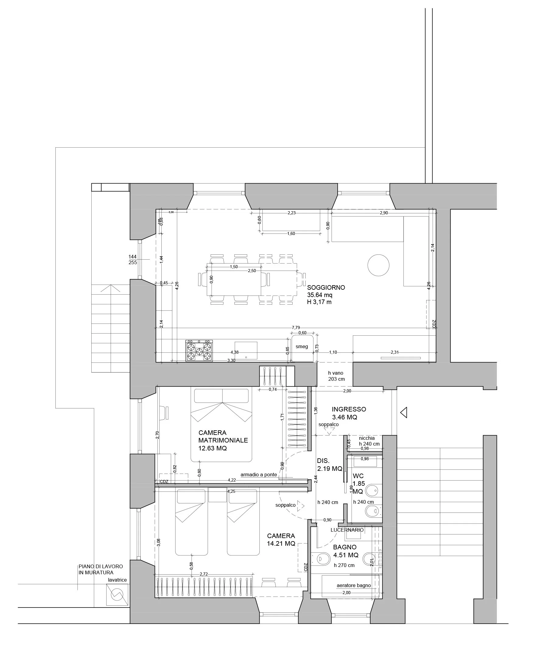
Il progetto ha previsto una completa ridistribuzione degli spazi interni, con l’obiettivo di valorizzare le aree più vissute della casa. È stato così creato un ampio soggiorno doppio con cucina a vista, cuore della vita familiare, mentre la zona notte è stata riorganizzata per rispondere alle necessità quotidiane: nella camera matrimoniale trova posto anche un angolo studio, pensato per garantire comfort e praticità.
La riorganizzazione ha interessato anche l’ingresso, ora dotato di una nicchia appendiabiti integrata, e i due bagni — uno completo e uno di servizio — progettati per ottimizzare ogni metro quadrato disponibile.
Il giardino, vero cuore della casa, conferisce all’appartamento un’atmosfera romantica e rilassata. Gli alberi da frutto preesistenti sono stati mantenuti e valorizzati attraverso un accurato progetto di design del verde, arricchito da nuove piantumazioni selezionate insieme alla committenza.
Anno: 2022
Committente: privato
Incarico: progettazione e direzione lavori
Superficie: 70 mq + 120 mq giardino
Foto: Emanuela Laurenti
per Di-Stanze Studio
[PRIMA ante operam]
[LAVORI inter operam]
[DOPO post operam]
[DOPO post operam giardino]
